견적의뢰 합니다.
페이지 정보
작성자 김우선 작성일15-09-29 17:40 조회6,732회 댓글1건본문
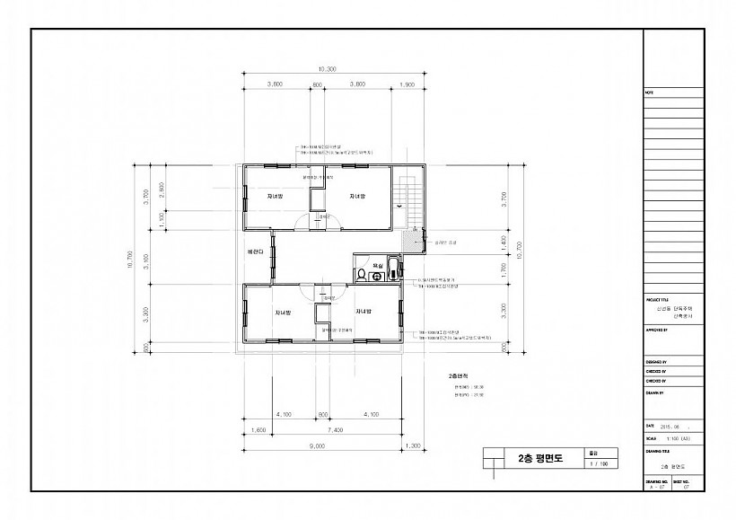
부산 신선동에 1층(30평) 단독주택 완전 리모델링과 2층 27평 조립식 주택을 지을려고 합니다.
자재는 중급수준으로 견적부탁드립니다. 화장실 물품은 대림(국내산) 기준 입니다.
본 도면에는 다락이 없습니만. 2층 거실 윗 부분에 다락을 만들고 싶습니다.
1. 조립식 주택(27평)
- 100T 판넬, 100T 난연단열재 사용
- 방4개, 화장실 1개
- 방창문 6개, 화장실 창문 1개, 다락 창 2개(하이샤시)
- 테라스 약 3평,
- 다락공간 약 6평
- 바닥, 난방공사
- 강화마루
- 1층과 연결 계단실
- 도배공사(실크)
- 전기, LED 등
- 천정 아스팔트 슁글
- 타일공사(화장실, 다용도실, 부엌)
- 방마다 붙박이 장 설치
2. 리모델링
- 기존 도배 및 벽체 일부 수정
- 바닥, 난방공사
- 강화마루
- 도배공사(실크)
- 정화조 (5인용)
- 기존 방 화장실로 변경
- 타일공사(화장실, 다용도실, 부엌)
- 수성연질우레탄폼 단열(벽면, 천정)
- 방마다 붙박이장 설치
1층 도면이 용량문제로 안올라가네요. 이메일로 발송하겠습니다.
자재는 중급수준으로 견적부탁드립니다. 화장실 물품은 대림(국내산) 기준 입니다.
본 도면에는 다락이 없습니만. 2층 거실 윗 부분에 다락을 만들고 싶습니다.
1. 조립식 주택(27평)
- 100T 판넬, 100T 난연단열재 사용
- 방4개, 화장실 1개
- 방창문 6개, 화장실 창문 1개, 다락 창 2개(하이샤시)
- 테라스 약 3평,
- 다락공간 약 6평
- 바닥, 난방공사
- 강화마루
- 1층과 연결 계단실
- 도배공사(실크)
- 전기, LED 등
- 천정 아스팔트 슁글
- 타일공사(화장실, 다용도실, 부엌)
- 방마다 붙박이 장 설치
2. 리모델링
- 기존 도배 및 벽체 일부 수정
- 바닥, 난방공사
- 강화마루
- 도배공사(실크)
- 정화조 (5인용)
- 기존 방 화장실로 변경
- 타일공사(화장실, 다용도실, 부엌)
- 수성연질우레탄폼 단열(벽면, 천정)
- 방마다 붙박이장 설치
1층 도면이 용량문제로 안올라가네요. 이메일로 발송하겠습니다.
댓글목록
삼우기업님의 댓글
삼우기업 작성일
삼우목조하우징회사로 전화하셔서 상담 받으시기를 바랍니다.
고객의 연락처가 없어서 전화를 드리지 못합니다.
